Un total de 156 plazas contarán con un punto de recarga eléctrica

Comienzan las obras de transformación del aparcamiento de Colón que dispondrá de 570 plazas, 150 para residentes

Nota de prensa 02/02/2026
  • Con una inversión de 6,7 millones de euros, los trabajos permitirán la implantación de un modelo mixto de aparcamiento al que los vecinos podrán acceder con abonos mensuales de 70 euros
  • Se ejecutarán, además, todas las actuaciones necesarias de arquitectura, estructura e instalaciones para adecuar el aparcamiento a la normativa y a las nuevas necesidades de uso, mejorando la accesibilidad
  • Esta intervención tendrá continuidad con la transformación de la actual base de grúas que EMT Madrid tiene también bajo el suelo de esta plaza en un hub de más de 5.000 m2 dedicado a la logística urbana y a la movilidad sostenible

Galería de imágenes

Este lunes, 2 de febrero, han comenzado las obras de transformación del aparcamiento municipal situado bajo la plaza de Colón, en el distrito de Salamanca. Se trata de trabajos contemplados en el contrato de concesión de servicios para la adecuación y explotación de estas instalaciones subterráneas, que incluyen tanto la ejecución de las obras de reparación de las estructuras y las instalaciones del aparcamiento como la gestión y explotación durante un plazo de 25 años.

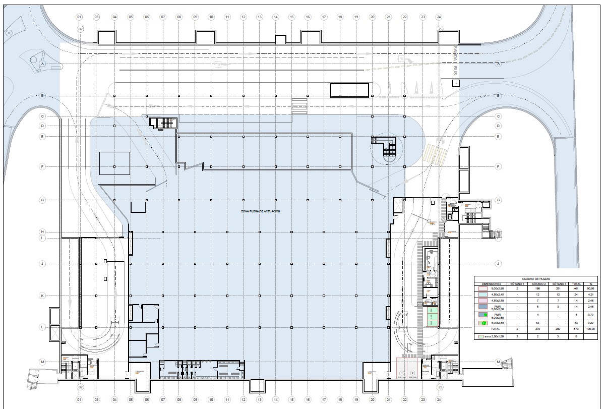
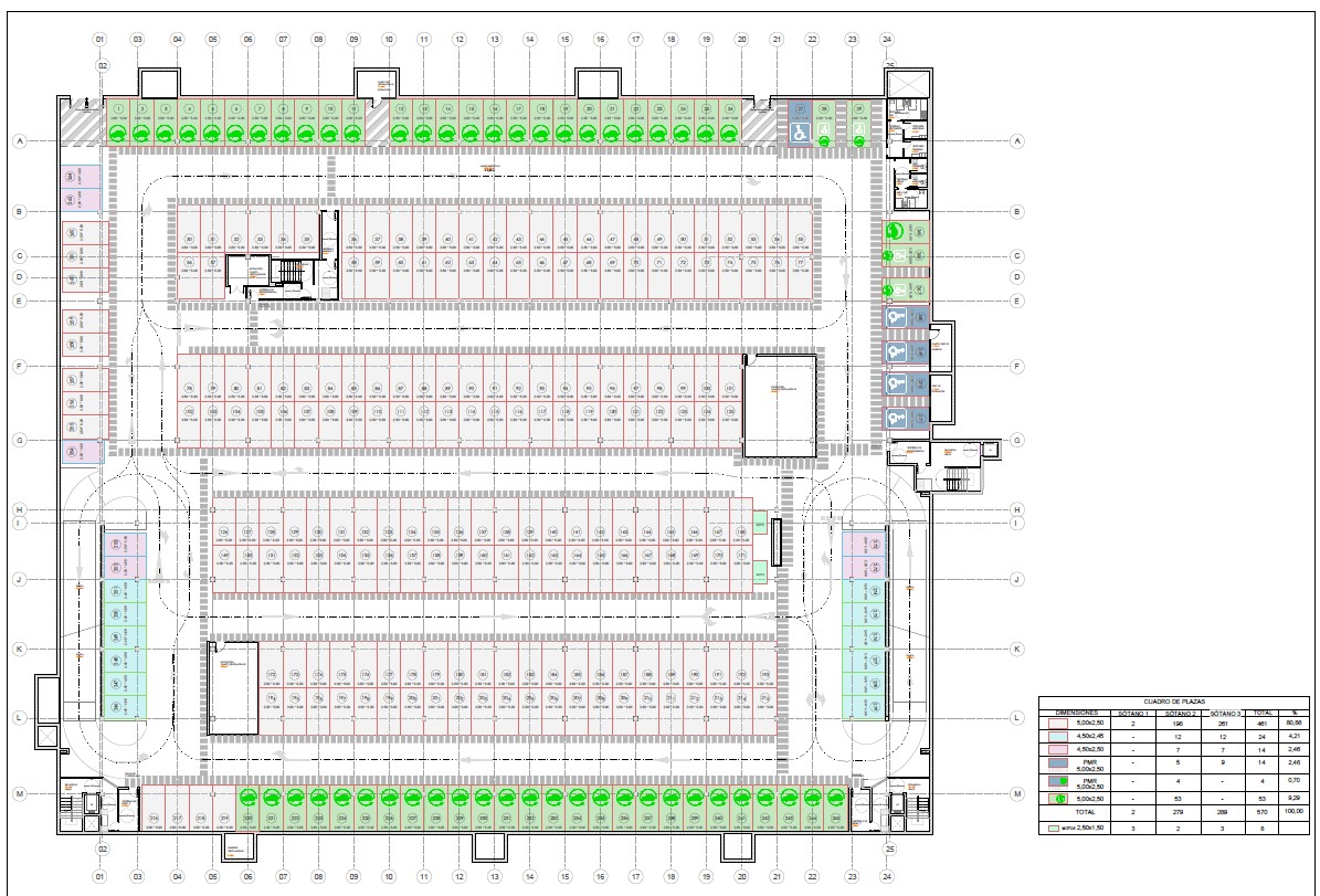
Esta actuación, impulsada por el Área de Urbanismo, Medio Ambiente y Movilidad, que dirige Borja Carabante, va a suponer la remodelación y modernización de una de las infraestructuras básicas de la ciudad. Una vez completados los trabajos en el aparcamiento situado bajo la rasante de los jardines del Descubrimiento, este incorporará un modelo mixto y sumará un total de 570 plazas, de las que 150 estarán reservadas para residentes y comerciantes de este entorno. De esta forma, el Ayuntamiento continúa dando respuesta a la demanda vecinal para poder acceder a plazas en aparcamientos municipales. Hasta ahora, el de Colón era un aparcamiento 100 % rotacional y ahora, los residentes podrán adquirir abonos mensuales a un precio de 70 euros. Además, un total de 156 plazas estarán equipadas con recarga eléctrica: 113 en la zona dedicada al aparcamiento de rotación y 43 de las reservadas para los residentes.

El espacio contará con un nuevo diseño para dotarle de un total de 570 plazas de aparcamiento para vehículos y ocho para motocicletas, distribuidas en tres plantas, 18 de las cuales estarán reservadas para personas con movilidad reducida. La distribución de plazas de aparcamiento por plantas será la siguiente:

- Sótano primero: dos plazas para vehículos y tres para motocicletas.

- Sótano segundo: 279 plazas para vehículos y dos para motocicletas.

- Sótano tercero: 289 plazas para vehículos y tres para motocicletas.

Se ejecutarán, además, todas las actuaciones necesarias de arquitectura, estructura e instalaciones para adecuar el aparcamiento a la normativa y a las nuevas necesidades de uso, mejorando la accesibilidad. El plazo máximo de duración de las obras es de 16 meses y la inversión total es de 6,7 millones. Toda la intervención se enmarca en el desarrollo de la Estrategia de Sostenibilidad Ambiental Madrid 360.

Transformación de la base de grúas de EMT Madrid en un hub logístico

Esta remodelación del aparcamiento público de Colón constituye una primera etapa que tendrá continuidad con la transformación de la actual base de grúas, que la Empresa Municipal de Transportes de Madrid (EMT Madrid) tiene también bajo el suelo de esta plaza, en un hub de más de 5.000 m2 dedicado a la logística urbana y a la movilidad sostenible. Este proyecto estratégico del Ayuntamiento y EMT Madrid forma parte del ambicioso paquete de iniciativas y actuaciones que se comenzarán a desplegar en los próximos meses como parte de la actualización de la Estrategia para la Distribución Urbana de Mercancías (DUM) Madrid 360, aprobada en 2022.

El proyecto para la creación del futuro hub de Colón, cuya licitación se realizará a lo largo de este año, permitirá transformar la actual base de grúas que EMT Madrid mantiene bajo la emblemática plaza de la capital. Tras los trabajos de rehabilitación y reforma, se prevén dedicar 4.000 m2 al futuro hub logístico, que contará con puntos de recarga, plazas de carga y descarga, actividades cross-docking (procesos de envío de productos sin almacenamiento), reparto de última milla y taquillas. Además, el hub de movilidad sostenible sumará otros 1.300 m2 y estará equipado con carga eléctrica de alta potencia, carsharing, bicimad, bicipark e intercambio de baterías (battery swap).

Este proyecto tiene como objetivo esencial reducir el número de vehículos necesarios para la actividad logística en el centro de Madrid y optimizar las rutas. También persigue un trasvase de la actividad logística a horas valle, preferentemente por la noche, circunstancia que redundará en la mejora de la movilidad y de la calidad del aire durante las horas punta. Asimismo, el futuro hub logístico de Colón busca potenciar la entrega de paquetería fuera de los domicilios, la electrificación de flotas y la promoción de modos de reparto sostenible (bicicletas, vehículos eléctricos, etc).

La reforma de la actual base de grúas de EMT Madrid se enmarca en los planes de transformación de aparcamientos tradicionales en hubs de movilidad que el actual equipo de Gobierno ha impulsado, permitiendo que la ciudad cuente actualmente con nueve instalaciones de estas características ya operativas en Canalejas, Recoletos, plaza de España, Carmen, Cortes, Santa Ana, Luna-Tudescos, Santo Domingo y paseo de Artilleros.

La estrategia para implantar hubs de movilidad sostenible tiene como objetivos el fomento de los modos de transporte compartidos y menos contaminantes, la mejora de la eficiencia logística y del espacio urbano, la reducción de la congestión y las emisiones y la ampliación de servicios de valor añadido en materia de movilidad. /

 

Subir Bajar