El Pleno del distrito aprobará dar a un espacio público el nombre del guardia civil asesinado por ETA

Moratalaz dedica unos jardines al guardia civil Miguel Miranda Puertas

Nota de prensa 18/06/2008
  • La iniciativa, presentada por el concejal del distrito, Fernando Martínez Vidal, será aprobada con el acuerdo de los tres grupos políticos municipales

Galería de imágenes

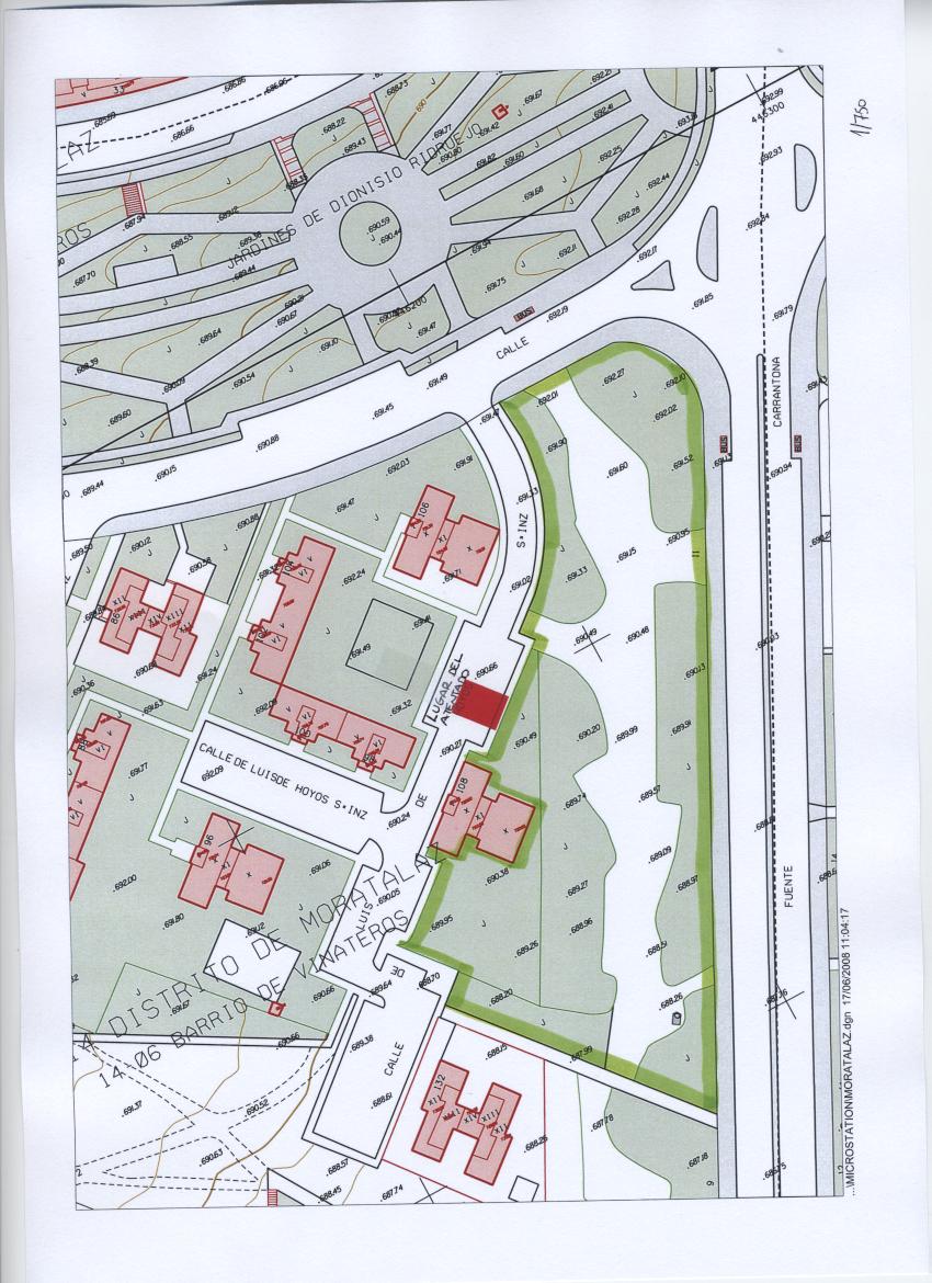
El distrito de Moratalaz dedicará unos jardines al guardia civil Miguel Ángel Miranda Puertas, asesinado por la banda terrorista ETA en la calle de Luis de Hoyos Sainz.

El Pleno de la Junta Municipal aprobará hoy la denominación “Jardines del Guardia Civil Miguel Miranda Puertas” al espacio público situado en la confluencia de las calles de Luis de Hoyos Sainz y Fuente Carrantona, próximo al lugar donde, el próximo 30 de noviembre hará 16 años, se produjo el atentado con coche bomba que costó la vida al agente.

La iniciativa, presentada por el concejal del distrito, Fernando Martínez Vidal, cuenta con el apoyo del alcalde de Madrid y será aprobada con el acuerdo de los tres grupos políticos municipales./

Subir Bajar